
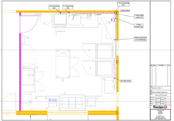
PROJECT : To renovate an existing staffroom into a fully functioning catering kitchen, requiring adjustments to the catering equipment, electrical, plumbing, and fire alarm systems.
LOCATION : Heathrow Airport Terminal 2

Planning
- Obtained all permits required by Heathrow Airport
- Completed plans

Plumbing & Electrical
- Installed electrical & plumbing works, adjusted and connected to the existing network
- Installed new water boiler and sink
- Connected new installations to the building fire alarm system

Catering
- Installed and commissioned new catering equipment (including cookline and recirculation canopy)
- Installed a new air conditioning unit and extract fan including ductwork systems
Before

After
